Villa Akse 165 – Arkitekttegnet kampagnehus på 165 m² med ovenlysvinduer | Levehuse
Menu

Menu

Ring Mail Til salg

Book fremvisning eller bliv kontaktet

Book fremvisning

Få mere viden om vores flotte projekter og bliv klogere på mulighederne, når I bygger med Levehuse.

Villa Akse 165

Akse Uden Overdaekket Terrasse

Et moderne kampagnehus udviklet af Nodo Arkitekter og Levehuse

Villa Akse 165 er et arkitekttegnet kampagnehus på 165 m², skabt i samarbejde mellem Nodo Arkitekter og Levehuse. Her får du en bolig, hvor moderne dansk arkitektur, lys og funktionalitet går hånd i hånd – og hvor hver eneste meter arbejder for dig og din familie. Kampagnehuset er tiltænkt dig, der har din egen byggegrund. 

Prisen for kampagneudgaven:

2.595.000 kr. inkl. bolig, carport og udhus.

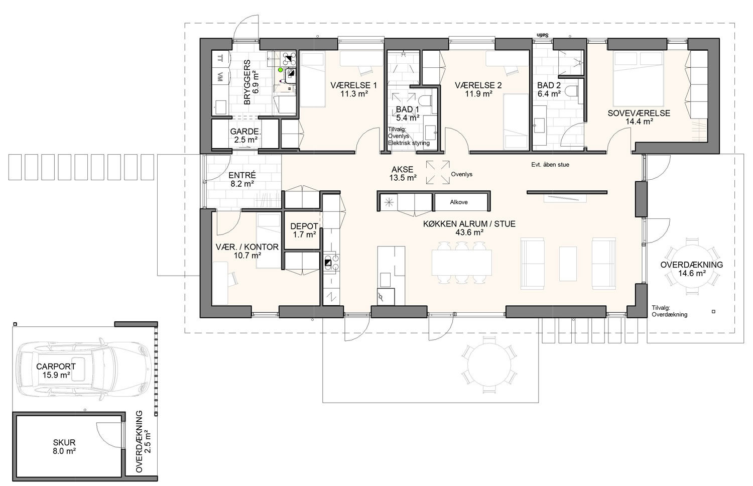
Se plantegning

Kampagneudgaven af Villa Akse 165 – alt dette er inkluderet

Når du vælger kampagneudgaven, får du en komplet løsning, der er klar til familieliv fra dag ét:

  • 165 m² arkitekttegnet bolig

  • Carport i et moderne, sammenhængende design

  • Redskabsrum til praktisk opbevaring

  • Velvalgte materialer og en gennemtænkt planløsning

 

Carport inkluderet i prisen

I kampagneprisen er en funktionel carport med integreret redskabsrum allerede inkluderet. Carporten placeres altid hensigtsmæssigt i forhold til grundens størrelse og udformning, så den både fungerer praktisk i hverdagen og spiller elegant sammen med boligens arkitektur.

Villa Akse 150 Stregtegning Kampagnehus

Husets styrker

 

  • Et kampagnehus med arkitektonisk kant
  • Lys og luft fra ovenlysvindue
  • Smart zoneopdeling til moderne familieliv
  • Fleksibel akse-væg med integrerede løsninger
  • Stærk pris i forhold til kvalitet og indhold
  • Perfekt til børnefamilier og unge par med behov for plads og struktur

 

Familievenlig planløsning med tydelig zoneopdeling

I Villa Akse 165 er der balanceret elegant mellem privatliv og fællesliv.

Privat soveafdeling

På den ene side af aksen finder du:

  • Værelser til børn, gæster eller hobby
  • Badeværelse i direkte tilknytning
  • Rolige zoner med god akustik og privatliv

Opholdsrum med masser af dagslys

På den anden side breder de fælles rum sig:

  • Stort køkken-alrum 
  • Opholdsstue med plads til både sofahjørne og fælles aktiviteter
  • Direkte udgang til udendørs arealer

Det er zoner, der både fungerer i små hverdagsstunder og når hele familien – plus naboerne – kommer forbi.

 

Plantegning Villa Akse 165 (1)

Pris for kampagnehus

Villa Akse 165

2.595.000,-

Alkove – favoritstedet for både børn og voksne

Alkoven i akseområdet er hurtigt blevet et af hjemmets mest elskede spots. Den fungerer som en hyggelig hule, en rolig læsekrog og en perfekt lille slap-af-zone, hvor man kan trække sig tilbage uden helt at slippe fællesskabet. Det er også det ideelle sted for børnene, når de gerne vil være tæt på – men ikke nødvendigvis midt i det hele.

Ovenlysvindue for ekstra lys

I kampagneprisen er der inkluderet et ovenlysvindue - og du kan tilvælge flere, hvis du ønsker ekstra lysindfald midt i boligen. Ovenlysvinduet i Villa Akse 165 er placeret i gangarealet, som adskiller hjemmets zoner, og det betyder, at lyset rammer dig allerede fra det øjeblik, du åbner hoveddøren. Herfra fortsætter det naturlige lys hele vejen ned gennem aksen og ender i et elegant gulv-til-loft-vindue i den modsatte ende af huset. Resultatet er en gennemgående oplevelse af lys, luft og åbenhed, der virkelig kan mærkes i hverdagen.

 

 

Materialepalette

På kampagnehuset Villa Akse 165 er den rustikke RT 444 Rustica – normalt en tilvalgssten – allerede inkluderet i prisen. Murstenen er valgt i samarbejde med Nodo Arkitekterne, da dens udtryk passer til husets form. Villaen fuges med en lys fuge, der komplimenterer den rød/brune sten. 

FAQ om Villa Akse 165

Kan vi ændre plantegningen på kampagnehuset?

Prisen for kampagnehuset gælder for den tilhørende plantegning på 165 m2. Det er muligt at udvide antallet af kvadratmeter, hvis du ønsker en større bolig - dette vil naturligvis forhøje prisen på boligen.

Hvad indeholder prisen?

Prisen på 2.595.000,- dækker bolig, carport og udhus. Alt interiør i boligen er standard materialer og er inkluderet. Der er afsat køkken og badeværelseselementer for 131.449 kr. til køb hos Svane Køkkenet. Prisen inkluderer også en hårde hvidevarer pakke til 30.400 kr. 

Hvor hurtigt kan huset bygges?

Den nøjagtige byggetid er afhængig af kommune og sagsbehandlingstider. Men selve byggeriet tager mellem 20-25 uger, fra vi er i jorden til du står med nøglen i hånden. 

Hvilke materialer kan vi vælge imellem?

Da Villa Akse er skabt i samarbejde med Nodo Arkitekter er der nogle særlige materialekrav til facaden, så husets æstetik bevares. Der kan vælges mellem 3 murstensvarianter og til disse er der forudbestemt fugefarver. 

Hvis I ønsker sildebens gulv eller andre særlige løsninger indvendigt kan dette sagtens lade sig gøre, men det er tilvalg, der ikke er inkluderet i kampagneprisen.

Er der inkluderet overdækket terrasse?

I kampagneprisen er den overdækkede terrasse ikke inkluderet. Hvis du ønsker at tilvælge en løsning med overdækning, der samt sort stålsøjle koster dette 66.000 kr. 

Klar til næste skridt?

Hvis Villa Akse 165 rammer noget i dig – måske rummene, stilen eller måden huset er tænkt på – så lad os tage en snak om mulighederne for at bygge på din grund. Et kort, uforpligtende møde kan give dig svar på pris, eventuelle tilvalg, materialer og hvordan Villa Akse passer til netop jeres grund og ønsker.

Book et gratis møde, hvis du vil høre mere.

Book møde


Download materiale

Vil du gennemgå plantegning, detaljer og specifikationer i ro og mag?
Download kampagnepakken med plantegning, pris og visualiseringer.

Download kampagnepakke
Akse Uden Overdaekket Terrasse 2