Hvad koster det at bygge nyt hus?
Går du med tanker om at bygge nyt hus? Og overvejer du, hvad det vil koste? Her får du nogle konkrete priseksempler på nybyggede huse opført af Levehuse. Prisen afhænger naturligvis af størrelse på grund og bolig, samt hvilke løsninger du prioriterer i boligen.
Prisen på dit hus afhænger af dine tilvalg
Et Levehus bygges i kvalitetsmaterialer både udvendigt og indvendigt og du får oplyst en fast pris, når vi starter byggeriet. Før byggestart kan du tilvælge løsninger, der går udover vores standardmaterialer. Hvis du f.eks. ønsker gips lofter fremfor Heradesign, sort zink på murkroner og nedløbsrør eller indbyggede brusehylder på badeværelset, lægges dine tilvalg til prisen. Når du laver et tilvalg får du med det samme oplyst prisen. Helt lavpraktisk sker det i et excel-ark, så du nemt kan danne dig et overblik og skrue op og ned for dine tilvalg og overholde dit budget.

5 økonomiske fordele ved at bygge nyt
At bygge et nyt hjem, er både en stor beslutning og en stor investering. Heldigvis er titlen ’nybygger’ også forbundet med stor glæde og mange fordele. I mange tilfælde er det billigere at bygge nyt fremfor at købe et gammelt hus, simpelthen fordi de eksisterende huse på markedet tit kræver renovering og energioptimering. Her får du 5 økonomiske fordele ved at bygge ny bolig:
-
Let vedligeholdelse: Nybyggeri har minimale udgifter til vedligehold i forhold til ældre huse.
-
Gratis 10-årig lovpligtig byggeskadeforsikring til sikkerhed for eventuelle fejl.
-
Øget energieffektivitet: Nybyggeri bruger ofte energieffektive materialer og teknologier, der kan hjælpe med at reducere udgifterne til elektricitet og andre energikilder.
-
Skræddersyet planløsning: Overflødige kvadratmeter i boligen reduceres, og du slipper for at varme unødvendige kvadratmeter op.
-
Nybyggerfordele hos Andelskassen: Når du bygger med Levehuse tilbydes du særlige lånevilkår hos Andelskassen.
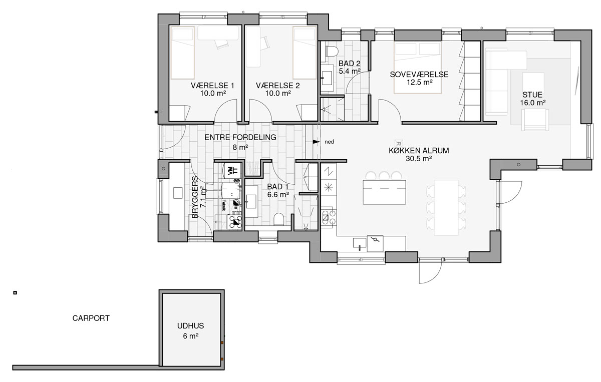
Priseksempel på nyt hus

Gårdhavehus på 130 m2 uden tilvalg
Beliggende på Brendmosen, Silkeborg.
- Grund 500 m2
- Carport 16,5 m2
- Redskabsrum 6 m2
- Skraldely 2,2 m2
- Overdækket cykelparkering 4 m2
- Opført i standardmaterialer
Pris: 3.145.000 kr.


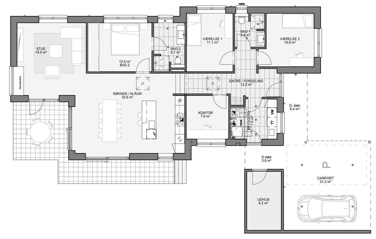
Gårdhavehus på 150 m2 med tilvalg
Beliggende på Brendmosen, Silkeborg.
- Grund 500 m2
- Carport 16,5 m2
- Redskabsrum 6 m2
- Skraldely 2,2 m
- Overdækket cykelparkering 4 m2
- Opført med tilvalg
Tilvalg:
- Sort antracit zink
- Sort antracit stål søjle carport
- 20 m2 ekstra bolig
- Indmurede brusehylder på badeværelse
- Gardiner i hele boligen
- 2 ovenlysvinduer
- Indbygget emhætte i loft
- Væghængte toiletter
Samlet pris på tilvalg 308.250 kr.
Pris: 3.453.250 kr.

Bygge nyt eller renovere?
Mange glemmer eller undervurderer, hvad det kræver og koster at renovere et ældre hus. Når I overvejer prisen for at bygge nyt hus ift. at købe, så tænk også på, at I med et nyt hus ikke skal tænke på renovering og vedligehold de første mange år, og at I i et nyt hus vil få et sundere indeklima.
Den største udfordring for de, der vælger at renovere er ofte uforudsete omkostninger. Man ved aldrig helt, hvad der gemmer sig under gulvbrædderne eller i væggen. Når I bygger nyt med Levehuse slipper I for disse bekymringer. Her ved I hele tiden præcist, hvad det vil koste jer. Det er kun jeres egne tilvalg, der kan ændre på prisen.
Få en nøjagtig pris på dit nye hus
Hos Levehuse kan I få en helt nøjagtig pris for, hvad det koster at bygge hus – oven i købet inkl. byggegrund, som for mange nybyggere er lidt af en joker. Under vores aktuelle projekter kan I se priser på helt konkrete huse på helt konkrete byggegrunde.
Det betyder, at I fra begyndelsen kender den endelige pris på jeres hus. I har ingen usikkerhed i forhold til at få valg af grund og hus til at passe sammen. Levehuse har designet huset efter grunden, og jeres pris er alt inkl.: grund, byggemodning, anlæg af vej, hus og – i mange tilfælde – carport og redskabskur.
Et typehus fra Levehuse kommer med nogle standardløsninger indenfor inventar og materialer. Hvis disse løsninger ikke passer ind i jeres drømmehus, har I mulighed for at tilvælge andre elementer, hvilket naturligvis påvirker prisen.
Hvis I har specifikke præferencer indenfor hårde hvidevarer, eller du ønsker en helt bestemt bordplade, kan dette tilvælges. Tilvalgene påvirker prisen på huset. Tilvalgsmulighederne er forskellige fra hus til hus – eksempler på tilvalg er væghængte toiletter, gipslofter eller overdækket terrasse. Alle tilvalgene tillægges prisen på huset. Levehuse hjælper gerne med rådgivning ifm. jeres valg – og I får altid en fast pris på, hvad tilvalget kommer til at koste.
Hvad koster et typehus?
Prisen på et typehus afhænger af mange faktorer, heriblandt: beliggenheden for boligen, hvor mange m2 I ønsker at bygge, hvilken loftshøjde boligen skal have, tagkonstruktionen samt hvilke materialer og inventar I ønsker. I Levehuse kan vi give jer en nøjagtig pris, når vi kender jeres ønsker til de ovenstående variabler. For at give et par priseksempler kan I i 2. kvartal 2024 købe et fritliggende længehus i Voel på 130 m2 for 2.795.000 kr. opført i vores standardmaterialer. I Funder kan I opføre et dobbelthus på 130 m2 for 2.695.000 kr. Priserne er inkl. grund, carport og redskabsskur. I kan se hvilke områder og hvilke boligtyper vi i øjeblikket kan hjælpe jer med at bygge ved at klikke her.
Hvad koster et nybygget hus?
Drømmer I om en nybygget bolig og vil I selv være med til at sætte stregerne? Inden drømmene tager fart, kan det være rart at have en idé om, hvad de vil koste at føre ud i livet. Som nybygger er der penge og ikke mindst tid og besvær at spare ved at lade et typehusfirma hjælpe jer i mål. Et nybygget hus bygget med Levehuse inkluderer grund, bolig, carport og redskabsskur. Når vi udbyder nye projekter sættes prisen efter beliggenhed, hustype og byggematerialer. Vi giver jer muligheden for at være nybyggere i de områder, hvor vi har opkøbt jorden og sørget for byggemodningen. I kan se de aktuelle områder samt priser under menupunktet ’huse til salg’.
Hvad koster det at bygge et 2 plans hus?
Som kommende nybygger er der mange spørgsmål, man skal have afklaret før byggeriet kan begynde. I den indledende fase, forsøger de fleste at afklare, hvad det vil koste at få opført en bolig, der står mål med de ønsker de har. Hos Levehuse sætter vi startprisen på en bolig i 2 plan udfra beliggenhed og antal m2. for bolig og udearealer. Vores boliger i 2 plan er ikke nødvendigvis dyrere eller billigere at opføre end en bolig i 1 plan, det afhænger som nævnt af en række andre faktorer. Hvis I drømmer om en bolig i 2 plan, så klik her for at se om vi i øjeblikket udbyder 2 plans nybygger boliger.
Hvad koster det at bygge et hus på 140 m2?
Når du er nybygger hos Levehuse afhænger prisen på din bolig blandt andet af hvilken hustype, du opfører samt beliggenheden. Disse to faktorer prissætter vi som udgangspunkt ud fra. Vi opfører primært nybyggeri på egne grundudstykninger og fastsætter en startpris, der inkluderer grund, bolig, carport og redskabsrum. Det er forskelligt fra projekt til projekt om startprisen er for 120 m2, 130 m2 eller 140 m2. Hvis du ønsker at bygge flere kvadratmeter end der indgår i startprisen koster det ca. 10.000 kr. pr. ekstra m2. Hvis vi f.eks. udbyder et længehus på 130 m2 til 2.995.000 kr. og du ønsker at opføre 140 m2 vil prisen være 3.095.000 kr.
Vi hjælper gerne
Vi tager gerne en snak med jer omkring jeres boligdrømme, og de projekter vi tilbyder. Vi hjælper også gerne med at opstille budgetter på baggrund af vores egne projekthuse til brug i jeres jagt på boligdrømmen.